装修案例
首页
装修套餐
经典套餐
名筑套餐
获取报价
核心优势
空间配置
匠心工艺
真实口碑
无忧售后
精益工程
热门小区
在建工地
样板特权
装修案例
精选案例
VR体验
设计团队
装修百科
装修攻略
装修视频
装修头条
关于我们
关于蜜蜂家
企业动态
招聘信息
蜜蜂家位置
首页
>
装修案例
>
大连装修效果图_大连装修设计_大连装修案例分享
>
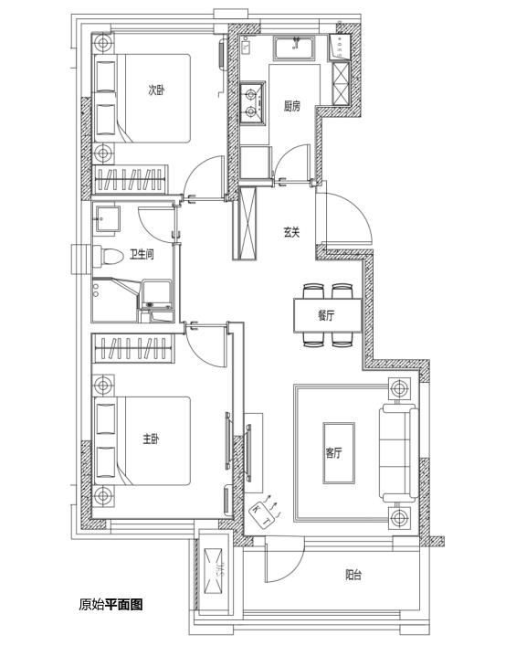
大连保利和府81平现代简约装修风格首席设计师张智嘉作品
大连保利和府81平现代简约装修风格首席设计师张智嘉作品
发布时间:2021-05-03 09:58:11 作者: 蜜蜂家装饰
人气值:1182
案例介绍
现代简约风格特点四、空间留白现代简约风格会根据整个装修综合考虑,在墙面、吊顶等占据视觉比重较大的空间留白,以减少视觉负担。现代简约风格特点五、颜色大胆现代简约风格色彩上多用黑白组合,红、橙、黄等热烈的色调,青、蓝、绿灯寒冷的色调相结合,在现代简约风格装修中常常可见。
客厅
餐厅
卧室
书房
其他
客厅
餐厅
卧室
书房
其他
上一条:大连华润二十四城140平北欧风格装修案例设计师张海洋作品
下一条:大连中航国际广场163平北欧风格装修案例首席设计师张智嘉
张智嘉
约设计师
从业时间:
6年
经验
3
套案例
0
套户型解析
设计理念
相关案例
大连保利和府81平现代简约装修风格首席设计师张智嘉作品
现代简约
大连中航国际广场163平北欧风格装修案例首席设计师张智嘉
北欧风格
大连颐和银座143平现代简约装修风格首席设计张智嘉作品
现代简约
热门攻略
大连怎么装修最省钱?装修过程中你看不到的隐性消费知多少
2021-10-05
装修前
装修选购客厅吊灯需要注意什么?客厅吊灯的款式有哪些?
2021-04-04
软装搭配
如何防止厨房下水道堵塞?厨房下水道清洗?
2021-04-04
木工阶段
装修复式跃层的户型住房要注意什么?复式户型装修注意事项
2021-04-04
拆改水电
24小时咨询热线
400-008-1136
点击拨打
辽宁省大连市沙河口区西南路761号
版权所有:蜜蜂家装饰工程(大连)有限公司 辽ICP备20008271号-2
首页
免费量房
免费设计
拨打电话
免费量房
—— 合理规划房屋空间 精准测量 ——
隐私保护
点击验证
我们会第一时间联系您,提供专属服务
免费量房
预约成功
您已经成功预约免费量房服务,蜜蜂家装饰会尽快联系您!请保持手机通畅
免费设计
—— 设计到您满意 ——
中式风格
现代简约
现代轻奢
欧式风格
隐私保护
点击验证
我们会第一时间联系您,提供专属服务
免费设计
预约成功
您已经成功预约量房,稍后我们将会把预约信息发送您手机上请注意查收,谢谢
免费量房
—— 合理规划房屋空间 精准测量 ——
装修计算器
今天已有269位业主获取了装修预算
装修类型
新房装修
老房翻新
*
房屋面积
*
手机号码
*
为了您的权益,您的隐私将被严格保密
开始计算
10秒获取装修预算,算清少花冤枉钱
装修预算报价为
86590
元